High Mast Lighting & Smart Street Lights for EPC Projects

One supplier for high mast and smart street lighting systems—bulk project supply.

Two Engineering-Grade Lighting Systems

High Mast Lighting

– For ports, container yards, stadiums, airports and large industrial areas
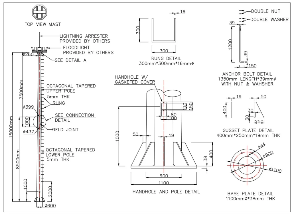
– 20–40 m poles with multi-head LED floodlight head frames
– Structural design, wind-load checking and basic foundation suggestions
– Hot-dip galvanized steel for long-term outdoor performance

Smart Street Lighting

– For urban roads, city centers, smart city corridors and plazas
– 6–15 m smart poles with LED light, cameras, screens or sensors
– 4G/5G/NB-IoT control for dimming, monitoring and fault alarms
– Integration options for CCTV, displays, Wi-Fi and environment sensors

Our Project

2019-2020 Togo Project: A Monumental Rollout of 10 High Mast Street Light
2018-2019 Kenya Arabia Project: A Monumental Rollout of 9 High Mast Street Light
2020 Saudi Arabia Project: 95 High Mast Poles Installed for Port Logistics Lighting
2025 Ethiopia Project: Smart Street Lighting Installation
2021 Malaysia Project: Smart Street Lighting with Remote Control & Energy Monitoring in City Center
2022 Nigeria Project: Solar-Powered Smart Street Lights Improve Urban Monitoring

what we do

High Mast Lighting Solutions for Different Sites

20–25 m High Mast Lighting for City Squares & Small Yards

Medium Mast Lights 10–12 meters

Medium Mast Lights 12–15 meters

High Mast Lights 15–20 meters

High Mast Lights 20–25 meters

High Mast Lights 25–30 meters

High Mast Lights 30–35 meters

High Mast Lights 35–40 meters

what we do

smart street light

smart street light

double-Arm smart Street Light

smart street light

smart street light

double-Arm smart Street Light

Double-Arm smart Street Light

smart street light

Double-Arm smart Street Light

High Mast Lighting Head — Engineered for Maximum Performance

design

produce

LED Head

Installation

The original factory produces 90% of the components itself.

Contact us

Let’s Build Your Lighting Solution Together

No need to worry about shipping and packaging!

We know international shipping can feel risky — that’s why we take full responsibility.

More information

certificate

What our customers say about us

Professional Engineering Support — Tailored Project Design Plans

No matter the size or scope of your project, our engineering experts are dedicated to creating the most cost-efficient solutions for you. Our team uses advanced modeling and planning tools to maximize the value of your investment by reducing unnecessary costs while enhancing the performance and longevity of your lighting systems.

R & D Team

Test Engineer
Structural Engineer
Lighting Engineer
Industrual Engineer
Electronic Engineer
Centrification Engineer

The ULTIMATE Guide to Sourcing Solar Lights in China

Get a Custom Quote Today!

Have questions or need more information? Our team at Sunlurio is ready to help! Fill out the form below for a personalized quote and expert advice tailored to your specific needs.